Achat terrains Bressols Cushman & Wakefield

Terrain A Vendre
82710 Bressols

Disponibilité : à l'acte | Réf. : 82_11083

Achat terrains Bressols Cushman & Wakefield

Surface : 17816 m² divisibles à partir de 1352 m²

À partir de : 105 € /m²

Prix de vente : 1 870 680 €

Disponibilité : à l'acte

Localisation

Surface - Contrat et Conditions

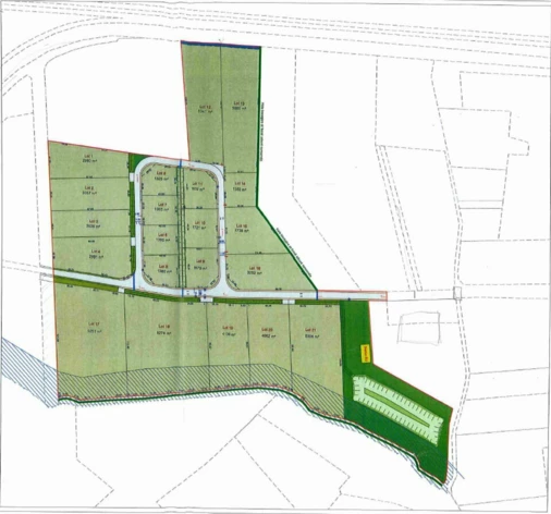
Batiment - LotSurfacePrix ventePrix vente m2HonorairesDisponibilité
LOT 81 325 m²139 125 € HT105 € HT9 739 € HTOUI
LOT 101 721 m²180 705 € HT105 € HT12 649 € HTOUI
LOT 111 659 m²174 195 € HT105 € HT12 194 € HTOUI
LOT 141 352 m²141 960 € HT105 € HT9 937 € HTOUI
LOT 152 738 m²273 800 € HT100 € HT19 166 € HTOUI

Cette offre ne correspond pas à vos attentes ?

Description

Cushman et Wakefield Toulouse vous propose un nouveau lotissement industriel en cours de réalisation à VENDRE.
Les terrains à usage d'activités sont idéalement situés au sud de Montauban sur la commune de Bressols et à proximité de la ZAC de Grand Sud Logistique

Les terrains sont viabilisés, prêts à construire

Prestations

  • Les terrains sont prêts à bâtir et peuvent être vendus rassemblés selon les possibilités
  • Les réseaux sont réalisés
  • Les accès sont réalisés
  • Les fluides sont en attente

Accès

  • Accès via A 62

Diagnostic énergétique

Consommation énergétique

En cours

Émission GED

En cours


Géorisques

Les informations sur les risques auxquels ce bien est exposé sont disponibles sur le site Géorisques


Offres similaires

Terrain

Achat terrains Campsas Cushman & Wakefield

Terrain A Vendre
82370 Campsas

Surface : 28 386 m², divisibles

Prix de vente : 3 122 460 €

Disponibilité : A l'acte

Terrain

Achat terrains Montbartier Cushman & Wakefield

Terrain A Vendre
82700 Montbartier

Surface : 40 311 m², divisibles

Prix de vente : 2 418 660 €

Disponibilité : A L'ACTE

Terrain

Achat terrains Grisolles Cushman & Wakefield

Terrain A Vendre
82170 Grisolles

Surface : 2 887 m², divisibles

Prix de vente : 216 525 €

Disponibilité : Juillet 2021

Terrain

Achat terrains Montauban Cushman & Wakefield

Terrain A Vendre
82000 Montauban

Surface : 5 929 m², divisibles

Prix de vente : 503 965 €

Disponibilité : Immédiate

Un projet immobilier ?

Vous souhaitez nous confier votre actif ?

Cushman & Wakefield vous aide à optimiser votre immobilier.

Créer un projet

Surface : 17816 m² divisibles à partir de 1352 m²

À partir de : 105 € /m²

Prix de vente : 1 870 680 €

Disponibilité : à l'acte

- Agence de TOULOUSE
- Agence de TOULOUSE

Fermer

1/2
2/2