Location commerces Bordeaux Cushman & Wakefield

BORDEAUX ARMAGNAC SURFACES COMMERCIALES NEUVES A RESERVER EN PIED D'IMMEUBLE
33800 Bordeaux

Disponibilité : 31/12/2025 | Réf. : 33_8443

Location commerces Bordeaux Cushman & Wakefield

Surface : 378 m² divisibles à partir de 80 m²

Loyer : 250 € HT/m²/an

Disponibilité : 31/12/2025

Localisation

Surface - Contrat et Conditions

LotSurfaceLoyer annuel HT/ m²Loyer annuel/m²
COM1136,89 m²230 € 34 222,50€ HT

Cette offre ne correspond pas à vos attentes ?

Description

BORDEAUX ARMAGNAC
Au sein du programme immobilier HEKA, qui s'inscrit au cœur de l'Opération d'Intérêt National Bordeaux Euratlantique :
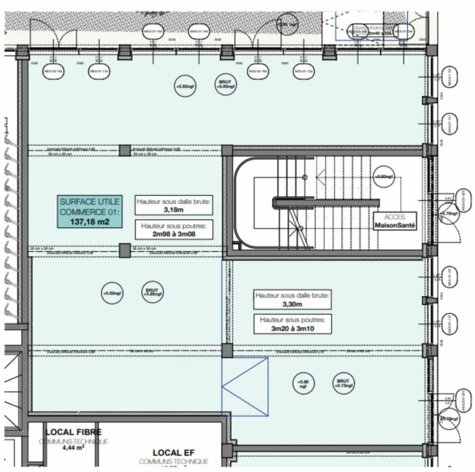
Une surface commerciale de 136,86m² avec une possibilité d'extraction.
Livré brute de béton, fluides en attente avec menuiseries/vitrines posées, normes PMR.
Gros potentiel de clientèle tertiaire mais aussi résidentielle.
En rez-de-chaussée, au sein d'un pôle de santé de 3 900m², qui sera exploité pour partie par la filiale "Vista Santé" et qui accueillera notamment une crèche, ce qui permettra de pallier le manque d'offres du secteur et dynamisera l'ensemble du quartier.
Situé à quelques minutes de la gare TGV St Jean Belcier, le quartier Armagnac vient revitaliser le secteur de la gare et requalifier cette porte d'entrée de la ville de Bordeaux.

Quatre émergences le complètent pour accueillir 95 logements.


Accès

  • Gare St Jean
  • Tram C et D
  • Bus liane n°11
  • Parking dédié au programme de 492 places (lot 8.12)

Quartier

Transport

Métro / Tram 3, Bus 50, Gare (Gare Bordeaux Saint-Jean), Parking 8, Vélo 6, Taxi 2

Se restaurer

Restaurant 3, Boulangerie 3

Santé & Services Public

Santé 10, Services Public 1

Commerces & Loisirs

Alimentation 3, Commerces 5, Loisirs culturels 2, Sport 4

Éducation

Crèche 4, École 4, Collège 1

Saint-Jean

Saint-Jean est un quartier de 9 442 habitants de la ville de Bordeaux dont 45 % des habitants sont propriétaires. Saint-Jean est un quartier avec 21 % de maisons et 79 % d'appartements.


Diagnostic énergétique

Consommation énergétique

En cours

Émission GED

En cours


Géorisques

Les informations sur les risques auxquels ce bien est exposé sont disponibles sur le site Géorisques


Offres similaires

Commerce

Location commerces Bordeaux Cushman & Wakefield

33800 Bordeaux

Surface : 627 m², div. min. 156 m²

Loyer : 150 € HT/m²/an

Disponibilité : 1er trimestre 2025

Commerce

Location commerces Bordeaux Cushman & Wakefield

33800 Bordeaux

Surface : 955 m², div. min. 144 m²

Loyer : 190 € HT/m²/an

Disponibilité : Immédiatement

Commerce

Location commerces Bordeaux Cushman & Wakefield

33800 Bordeaux

Surface : 167 m², divisibles

Loyer : 220 € HTHC/m²/an

Disponibilité : Immédiatement

Commerce

Location commerces Talence Cushman & Wakefield

33400 Talence

Surface : 178 m², divisibles

Loyer : 236 € HT/m²/an

Disponibilité : Immédiatement

Commerce

Achat ou Location commerces Bordeaux Cushman & Wakefield

33800 Bordeaux

Surface : 160 m², divisibles

Prix de vente : 280 000 €

Disponibilité : Immédiate

Commerce

Location commerces Bordeaux Cushman & Wakefield

33000 Bordeaux

Surface : 1 092 m², divisibles

Loyer : 170 € HT/m²/an

Disponibilité : Immédiatement

Commerce

Achat ou Location commerces Bordeaux Cushman & Wakefield

33000 Bordeaux

Surface : 38 m², divisibles

Loyer : 532 € TTC/m²/an


Prix de vente : 180 000 €

Disponibilité : A définir

Commerce

Achat ou Location commerces Bordeaux Cushman & Wakefield

33000 Bordeaux

Surface : 137 m², divisibles

Prix de vente : 400 000 €

Disponibilité : A définir

Commerce

Location commerces Bordeaux Cushman & Wakefield

33000 Bordeaux

Surface : 340 m², divisibles

Loyer : 279 € HTHC/m²/an

Disponibilité : Immédiatement

Commerce

Achat ou Location commerces Bordeaux Cushman & Wakefield

33000 Bordeaux

Surface : 95 m², divisibles

Prix de vente : 300 000 €

Disponibilité : Immédiatement

Un projet immobilier ?

Vous souhaitez nous confier votre actif ?

Cushman & Wakefield vous aide à optimiser votre immobilier.

Créer un projet

Surface : 378 m² divisibles à partir de 80 m²

Loyer : 250 € HT/m²/an

Disponibilité : 31/12/2025

- Agence de Bordeaux
- Agence de Bordeaux

Fermer

1/5
2/5
3/5
4/5
5/5