Location logistique Aulnay-sous-Bois Cushman & Wakefield

Messagerie - Garonor Aulnay 18 Garonor 93600 Aulnay Sous Bois

Disponibilité : Immédiate | Réf. : 188174

Location logistique Aulnay-sous-Bois Cushman & Wakefield

Surface : 5 955 m² non divisibles

Loyer : 150 € HT/HC/m²/an

Disponibilité : Immédiate

Localisation

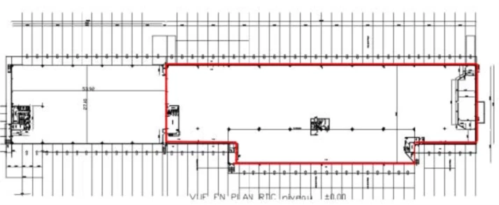
Surface

Bâtiment Étage Surface Type Loyer
1 205 m² Bureaux Nous consulter
1 810 m² Bureaux Nous consulter
RdC 225 m² Bureaux Nous consulter
RdC 1501 m² Entrepôts Nous consulter
Cellule A Total Cellule Cellule A 1706 m² Entrepôts 150 € HT/HC/m²/an
RdC 3214 m² Entrepôts Nous consulter
Cellules B et C Total Cellule Cellules B et C 4249 m² Entrepôts 150 € HT/HC/m²/an
Total 5 955 m²

Contrat et Conditions

Bail Dérogatoire
Régime fiscal T.V.A.
Honoraires à la charge du preneur
Charges locatives 15.48 € HT/m²/an

Cette offre ne correspond pas à vos attentes ?

Description

CW vous propose une opportunité exceptionnelle dans le domaine de l'immobilier d'entreprises à Aulnay-sous-Bois : un entrepôt de 4 249 m² non divisibles, idéalement situé et offrant une multitude d'avantages. Doté de 2 rampes et de 84 quais, ce site bénéficie d'une messagerie bi-face, d'une sécurité renforcée avec un site clos et vidéosurveillé, ainsi que d'un PC sécurité incendie Garonor opérationnel 24h/24 et 7j/7. Sa structure métallique, sa hauteur libre de 4,63 à 5,78 mètres, sa résistance au sol de 5 tonnes/m² et ses portes de dimensions généreuses (3,10 m de hauteur sur 3,45 m de largeur) en font un espace fonctionnel et adapté à de multiples activités. De plus, il est conforme à la réglementation ICPE 1510 et dispose d'un accès à quai pour véhicules légers et poids lourds, incluant 3 niveleurs. Avec une profondeur allant de 27 à 35 mètres, une rampe d'accès, une détection incendie et des RIA, ce bien offre un environnement sécurisé et propice au développement de votre entreprise. Les bureaux sont équipés d'un chauffage par eau chaude, et des locaux sociaux comprenant des sanitaires et des douches sont disponibles. De plus, le site bénéficie d'un service de Property Management sur zone, ainsi que de commodités telles qu'une brasserie et des hôtels à proximité. Des services administratifs tels que les douanes et la médecine du travail sont également présents sur place, offrant un cadre de travail optimal pour votre activité.
Ne manquez pas cette occasion unique de louer un espace commercial de qualité à Aulnay-sous-Bois, contactez CW dès aujourd'hui pour plus d'informations.

Prestations

  • Messagerie bi-face
  • Site clos et vidéosurveillé
  • PC sécurité incendie GARONOR 24h/24 7j/7
  • Structure métallique
  • Hauteur libre : 4,63 à 5,78 m
  • Résistance au sol : 5 t/m²
  • Dimension des portes : H 3,10 m x l 3,45 m
  • ICPE : 1510
  • Accès à quai VUL et PL (dont 3 niveleurs)
  • Profondeur : 27 à 35 m
  • Rampe d'accès
  • Détection incendie et RIA
  • Chauffage bureaux par eau chaude
  • Locaux sociaux : sanitaires et douches
  • Property Management sur zone
  • Brasserie et hôtels sur site
  • Services administratifs sur place : douanes, médecine du travail, etc
  • 2 rampes
  • 84 quais
  • Surface RDC : 4940 m²
  • Résistance sol : 5 T/m²
  • Ossature : Métallique

Accès

  • Accès routier A l'intersection des A1 et A3
  • Aéroport A proximité de Roissy Charles-de-Gaulle
  • RER Aulnay sous-Bois, Drancy (RER B)
  • Bus 3 arrêts de bus sur le parc

Quartier

Transport

Métro / Tram (Aulnay (2026)), Bus 10, Parking 16

Se restaurer

Restaurant 1

Santé & Services Public

Santé 3, Services Public 1

Commerces & Loisirs

Alimentation 1, Commerces 3, Loisirs culturels 1, Sport 2

Éducation

Crèche 1, École 5, Collège 1

Ouest Edgar Degas

Ouest Edgar Degas est un quartier de 5 910 habitants de la ville d'Aulnay-sous-Bois dont 87 % des habitants sont locataires.
Ouest Edgar Degas est un quartier calme avec 86 % d'appartements et 14 % de maisons.
Il y a 80 commerces de proximité dont des commerces, des restaurants et un hypermarché.
Le quartier est bien desservi en transports en commun avec 33 % de ménages ne possédant pas de voiture et il y a de nombreux espaces verts.
Le quartier est situé à 15 km du centre de Paris ou 40 minutes en voiture.


Diagnostic énergétique

Consommation énergétique

En cours

Émission GED

En cours


Géorisques

Les informations sur les risques auxquels ce bien est exposé sont disponibles sur le site Géorisques


Offres similaires

Entrepôts

Location logistique Aulnay-sous-Bois Cushman & Wakefield

Garonor Aulnay 12
93600 Aulnay Sous Bois

Surface : 2 306 m², div. min. 225 m²

Loyer : 110 € HT/HC/m²/an

Disponibilité : Immédiate

Entrepôts

Location logistique Aulnay-sous-Bois Cushman & Wakefield

Garonor Aulnay 13
93600 Aulnay Sous Bois

Surface : 3 482 m², div. min. 1 160 m²

Loyer : 110 € HT/HC/m²/an

Disponibilité : Immédiate

Entrepôts

Location logistique Aulnay-sous-Bois Cushman & Wakefield

Garonor Aulnay 17
93600 Aulnay Sous Bois

Surface : 287 m², non divisibles

Loyer : 100 € HT/HC/m²/an

Disponibilité : Immédiate

Entrepôts

Location logistique Le Blanc-Mesnil Cushman & Wakefield

Le Blanc Mesnil 2
93150 Le Blanc Mesnil

Surface : 4 827 m², non divisibles

Loyer : 140 € HT/HC/m²/an

Disponibilité : Immédiate

Entrepôts

Location logistique Compans Cushman & Wakefield

Mitry - Dc7E
77290 Mitry Mory

Surface : 4 849 m², non divisibles

Loyer : 90 € HT/HC/m²/an

Disponibilité : Immédiate

Entrepôts

Location logistique Mitry-Mory Cushman & Wakefield

Messagerie
77290 Compans

Surface : 5 618 m², non divisibles

Prix Nous consulter

Disponibilité : 31/10/2027

Entrepôts

Location logistique Le Mesnil-Amelot Cushman & Wakefield

-
77990 Le Mesnil Amelot

Surface : 196 858 m², non divisibles

Prix Nous consulter

Disponibilité : 30/04/2027

Entrepôts

Location logistique Moussy-le-Neuf Cushman & Wakefield

-
77230 Moussy Le Neuf

Surface : 5 527 m², non divisibles

Loyer : 65 € HT/HC/m²/an

Disponibilité : Immédiate

Entrepôts

Location logistique Gonesse Cushman & Wakefield

2 Rue D'Arsonval
95500 Gonesse

Surface : 25 702 m², div. min. 475 m²

Loyer : 135 € HT/HC/m²/an

Disponibilité : 30/06/2026

Entrepôts

Location logistique Fosses Cushman & Wakefield

-
95470 Saint Witz

Surface : 33 399 m², div. min. 2 591 m²

À partir de : 75 € HT/HC/m²/an

Disponibilité : Immédiate

Un projet immobilier ?

Vous souhaitez nous confier votre actif ?

Cushman & Wakefield vous aide à optimiser votre immobilier.

Créer un projet

Surface : 5 955 m² non divisibles

Loyer : 150 € HT/HC/m²/an

Disponibilité : Immédiate

Florian MOREAU
Florian MOREAU

Fermer

1/2
2/2

Fermer

Plan masse
1/2 Plan masse
2/2