Location entrepôts / activités Toulouse Cushman & Wakefield

Locaux Neufs A Louer 31100 Toulouse

Disponibilité : 1T 2027 | Réf. : 31_13414

Location entrepôts / activités Toulouse Cushman & Wakefield

Surface : 720 m² divisibles à partir de 190 m²

Loyer : 100 € HT/m²/an

Disponibilité : 1T 2027

Localisation

Surface - Contrat et Conditions

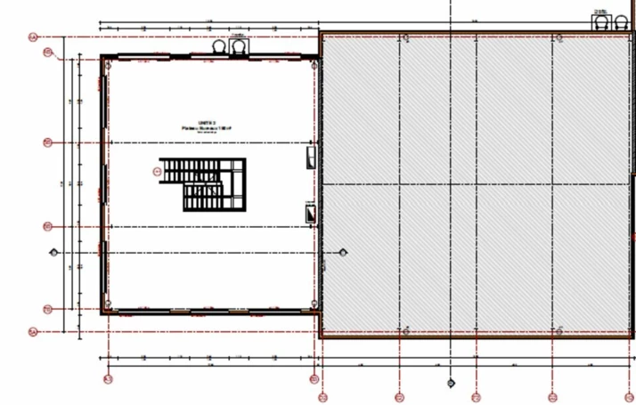
Unité Usage Surface RDC Surface R+1Surface totale Loyer HT/m²/an Disponibilité
2Bureaux / petite activité 190 m² 190 m² 380 m² 100 € HT/m²/an oui
3Entrepôt 340 m² 340 m² 100 € HT/m²/an oui

Cette offre ne correspond pas à vos attentes ?

Description

Dans un ensemble en cours de construction situé Zone de Larrieu, le cabinet Cushman & Wakefield Toulouse vous présente à la location deux biens pouvant être loués ensemble ou séparément.

L'unité 2 est à usage de bureaux ou petite activité et comprend:
- une surface d'environ 190 m² en RDC,
- une surface d'environ 190 m² en étage.
Plateaux loués nus sans équipements et aménagements

L'unité 3 d'une surface d'environ 340 m² est à usage d'entrepôt.
Dalle de 3.5 t/m²
HSP 7 m
Porte sectionnelle + un accès piéton
Trappe de désenfumage


Accès

  • accès immédiat par l'A64 sortie n°38
  • Bus lignes 50, 117 et L5

Quartier

Transport

Métro / Tram (Oncopole), Bus 37, Parking 4, Vélo 2

Se restaurer

Restaurant 1, Boulangerie 2

Santé & Services Public

Santé 88, Services Public 1

Commerces & Loisirs

Alimentation 3, Commerces 2, Loisirs culturels 1, Sport 5

Éducation

Crèche 1, École 3, Collège 2, Lycée 1

Lafourguette - Gironis

Lafourguette - Gironis est un quartier de 10 440 habitants de la ville de Toulouse dont 32 % des habitants sont propriétaires.
Lafourguette - Gironis est un quartier calme avec 77 % d'appartements et 23 % de maisons.
Il y a 170 commerces de proximité dont des commerces, des restaurants et un hypermarché.
Il y a de nombreux espaces verts.


Diagnostic énergétique

Consommation énergétique

En cours

Émission GED

En cours


Géorisques

Les informations sur les risques auxquels ce bien est exposé sont disponibles sur le site Géorisques


Offres similaires

Activités

Location entrepôts / activités Toulouse Cushman & Wakefield

-
31100 Toulouse

Surface : 458 m², divisibles

Loyer : 80 € HT/m²/an

Disponibilité : Immédiate

Activités

Location entrepôts / activités Toulouse Cushman & Wakefield

-
31100 Toulouse

Surface : 296 m², divisibles

Loyer : 107 € HT/m²/an

Disponibilité : Immédiate

Activités

Location entrepôts / activités Toulouse Cushman & Wakefield

-
31100 Toulouse

Surface : 278 m², divisibles

Loyer : 105 € HT/m²/an

Disponibilité : Immédiate

Activités

Location entrepôts / activités Toulouse Cushman & Wakefield

-
31100 Toulouse

Surface : 380 m², divisibles

Loyer : 105 € HT/m²/an

Disponibilité : Immédiate

Activités

Location entrepôts / activités Portet-sur-Garonne Cushman & Wakefield

-
31120 Portet Sur Garonne

Surface : 6 000 m², div. min. 400 m²

Prix Nous consulter

Disponibilité : septembre 2026

Activités

Location entrepôts / activités Toulouse Cushman & Wakefield

-
31100 Toulouse

Surface : 750 m², divisibles

Loyer : 60 € HT/m²/an

Disponibilité : 01/06/2025

Activités

Location entrepôts / activités Toulouse Cushman & Wakefield

-
31100 Toulouse

Surface : 1 150 m², divisibles

Loyer : 96 € HT/m²/an

Disponibilité : Février 2025

Activités

Location entrepôts / activités Toulouse Cushman & Wakefield

-
31100 Toulouse

Surface : 900 m², div. min. 450 m²

Loyer : 103 € HT/m²/an

Disponibilité : Immédiate

Activités

Location entrepôts / activités Toulouse Cushman & Wakefield

-
31100 Toulouse

Surface : 450 m², divisibles

Loyer : 103 € HT/m²/an

Disponibilité : Immédiate

Activités

Location entrepôts / activités Toulouse Cushman & Wakefield

-
31100 Toulouse

Surface : 523 m², divisibles

Loyer : 105 € HT/m²/an

Disponibilité : 01/07/2026

Un projet immobilier ?

Vous souhaitez nous confier votre actif ?

Cushman & Wakefield vous aide à optimiser votre immobilier.

Créer un projet

Surface : 720 m² divisibles à partir de 190 m²

Loyer : 100 € HT/m²/an

Disponibilité : 1T 2027

- Agence de TOULOUSE

Fermer

1/3
2/3
3/3